Pronájem skladu 1 150 m², Bruntál

- Adresa Bruntál
- Ev. č. RT1340-02426
- Typ sklady
- Plocha 1 150 m²
info v RK
Bruntál
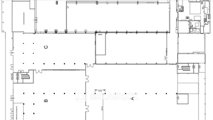
Nabízíme k pronájmu skladovací a výrobní prostory v industriálním Areálu Bruntál, který se nachází ve městě Bruntál, Moravskoslezský kraj, přístup na dálnici D1 - 55 km a 20 km od hranic s Polskem.
Nabízíme k dispozici následující prostory:
Hala A – 2 269 m², světlá výška 6 m
Hala B – 1 156 m², světlá výška 6 m
Hala C – 1 072 m², světlá výška 6 m
Hala N – 1 124 m², světlá výška 10,3 m
Hala N2 – 760 m², světlá výška 6 m
Možnost kanceláří a venkovní plochy o velikosti 4 000 m2.
Technické parametry:
• nosnost podlahy 5-20 t/m2
• světlíky po celé ploše střechy
• vybaveny EPS
• nevytápěné - lze vytápět dle dohody
• Jeřábové dráhy
• dostatek parkovacích míst pro nákladní i osobní vozidla
• kanceláře v přilehlé budově
Na našem portále najdete více než 700 skladových hal v ČR a na Slovensku. Rádi pro klienta zdarma zpracujeme aktuální přehled nabídek v požadované lokalitě a v rámci našeho zastoupení zajistíme pro klienta nevýhodnější podmínky nájmu.
V případě zájmu o tuto či jinou nemovitost nás neváhejte kontaktovat a zajistěte si prohlídku ještě dnes.
Údaje k nemovitosti
| Kategorie | Sklady |
| Lokalita | Bruntál |
| Okres | Bruntál |
| Užitná plocha | 1.150 m² |
| Stav objektu | Velmi dobrý |
| Budova | Smíšená |
| Typ domu | Přízemní |
| Datum nastěhování | 1. leden 2026 |
| Rozměry - výška stropu | 6 m |





















