Pronájem skladu 200 m², Bělá pod Bezdězem

- Adresa Vazačka, Bělá pod Bezdězem
- Ev. č. RT1609-923929
- Typ sklady
- Plocha 200 m²
24 000 Kč za měsíc (1 440 Kč za m²/rok)
Cena bez zálohy
Pronájem skladu, 200 m², Bělá pod Bezdězem, ul. Vazačka
Nabízíme k dlouhodobému pronájmu komerční prostory v budově na Vazačce u Bělé pod Bezdězem.
Celková užitná plocha budovy je 429 m², minimální plocha pronájmu je 200 m², jednotková cena je 120 Kč/ m².
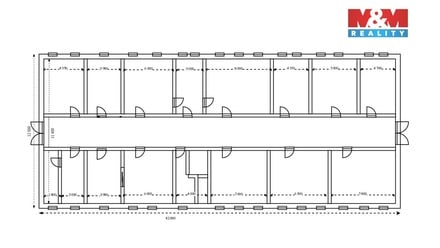
Budova je zděná, vnitřní příčky nebo vstupy do budovy je možné upravit podle požadavků zájemce po dohodě s majitelem. Současný půdorys budovy je ve fotografiích.
Přívod vody a el. energie je u objektu, pronajímatel zajistí fyzický přívod vody a el. energie do budovy podle požadavků zájemce, stejně jako opravu oken a rekonstrukci sociálního zařízení.
Vytápění pronajímané části bude v režii zájemce.
Případné stavební úpravy, jejich financování a délka smlouvy (ideálně 3 roky a déle) budou zohledněné v nájemní smlouvě.
Prostor je vhodný pro sklad, kanceláře nebo drobnou výrobu. Parkování je možné před budovou. Vjezd do areálu je hlavní branou u budovy.
Pro další informace volejte makléře.
Údaje k nemovitosti
| Kategorie | Sklady |
| Lokalita | Vazačka, Bělá pod Bezdězem |
| Okres | Mladá Boleslav |
| Vlastnictví | Osobní |
| Užitná plocha | 200 m² |
| Počet podlaží | 1 |
| Podlaží umístění | 1. NP |
| Stav objektu | Dobrý |
| Budova | Cihlová |
| Typ domu | Přízemní |
| Umístění objektu | Okraj obce |
| Rok kolaudace | 1965 |
| Zařízený | Ne |
| Bezbariérový | ne |
| Míst k parkování | 2 |
| Parkování | Ano |
| Výtah | ne |
| Doprava | Silnice |
| Voda | Dálkový vodovod |













