Prodej bytu 2+kk 50 m², Praha - Kamýk

- Adresa Vosátkova, Praha - Kamýk
- Ev. č. RT1299-2031 - NVSTB - KMK
- Typ byty 2+kk
- Plocha 50 m²
- Vlastnictví osobní
8 557 000 Kč (171 140 Kč za m²)
Včetně DPH a poplatků. Cena nezahrnuje sklep a parkovací stání.
Prodej bytu 2+kk, 53,8 m² - Praha - Kamýk
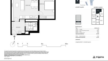
Byt č. 2031: Prostorný 2+kk s orientací na severozápad
Výstavba zahájena – 40 % bytů prodáno během 6 měsíců!
Neváhejte s výběrem – právě teď máte možnost zvolit si ideální dispozici i orientaci bytu v atraktivním projektu Dueta Kamýk, který spojuje moderní bydlení s přírodou
Byt č. 2031 o dispozici 2+kk a podlahové ploše 53,8 m² nabízí moderní bydlení s praktickým uspořádáním a dostatkem prostoru. Nachází se ve 3. nadzemním podlaží projektu Dueta Kamýk se severozápadní orientací, která zajistí klidné světlo během odpoledne. Obývací pokoj s kuchyňským koutem (24,8 m²) je propojený s ložnicí (13,6 m²), což vytváří komfortní obytný prostor. Zázemí doplňuje chodba a moderní koupelna s WC.
• Praktická dispozice 2+kk s efektivním využitím prostoru
• Energetická třída A – mimořádně úsporná
• Chytré řešení v moderním projektu
Vhodné pro: Páry, singles nebo investory hledající moderní a praktické bydlení.
Projekt Dueta Kamýk přináší jedinečnou kombinaci klidného bydlení uprostřed přírody a skvělé dostupnosti do centra Prahy díky plánované trase metra D. Lokalita nabízí nejen blízkost lesoparku a rozsáhlé zeleně, ale i atraktivní výhledy, které ocení každý milovník přírody.
Byty jsou vybaveny nadstandardními technologiemi – rekuperací, podlahovým vytápěním, předokenními žaluziemi a kvalitními materiály, které zaručují pohodlí i úsporný provoz.
Dueta Kamýk je ideálním řešením jak pro vlastní bydlení, tak jako chytrá investice v rychle se rozvíjející lokalitě.
Údaje k nemovitosti
| Kategorie | Byty 2+kk |
| Lokalita | Vosátkova, Praha - Kamýk |
| Okres | území Hlavního města Prahy |
| Vlastnictví | Osobní |
| Užitná plocha | 50 m² |
| Počet podlaží | 9 |
| Podlaží umístění | 3. NP |
| Stav objektu | Novostavba |
| Budova | Skeletová |














