Prodej bytu 2+kk 50 m², Praha - Kamýk

- Adresa Vosátkova, Praha - Kamýk
- Ev. č. RT1299-2077 - NVSTB - KMK
- Typ byty 2+kk
- Plocha 50 m²
- Vlastnictví osobní
9 429 000 Kč (188 580 Kč za m²)
Včetně DPH a poplatků. Cena nezahrnuje sklep a parkovací stání.
Prodej bytu 2+kk, 53,4 m² - Praha - Kamýk
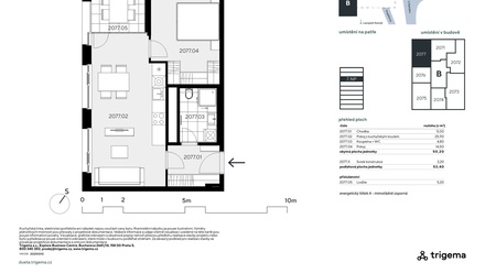
Byt č. 2077: Funkční 2+kk se SZ orientací
Novostavba bytu v úspěšném developerském projektu pouhých 5 minut od budoucí stanice metra trasy D.
Místo výstavby přímo navazuje na Kamýcký les a přilehlý park, nabízí překrásné výhledy do zeleně i na Prahu.
40 % bytů prodáno během prvních 6 měsíců, výstavba již zahájena.
Byt č. 2077 o dispozici 2+kk a podlahové ploše 53,4 m² je ideální volbou pro pohodlné a moderní bydlení.
Nachází se v 7. nadzemním podlaží projektu Dueta Kamýk se severozápadní orientací, která zajistí klidné odpolední světlo. Obývací pokoj s kuchyňským koutem (25,9 m²) je propojen s ložnicí (14,5 m²), čímž vzniká praktický a útulný obytný prostor.
Praktické zázemí zahrnuje chodbu a koupelnu s WC.
Milovníci západu slunce jistě ocení lodžii (5,2 m²).
• Prostorná dispozice 2+kk s lodžií s efektivním uspořádáním
• Severozápadní orientace pro klidná odpoledne
• Energetická třída A – mimořádně úsporná
• Komfortní a moderní bydlení
Vhodné pro:
Páry, singles nebo investory hledající funkční bydlení.
Byty jsou vybaveny nadstandardními technologiemi pro zdravé bydlení: rekuperací, podlahovým vytápěním, předokenními žaluziemi a kvalitními materiály, které zaručují pohodlí i úsporný provoz.
Výjimečná lokalita přímo u Kamýckého lesa nabízí klid a zeleň na dosah ruky, zároveň také velmi dobrou dostupnost díky plánované stanici metra Nové Dvory na trase D. V okolí je navíc skvělá občanská vybavenost.
Dueta Kamýk je ideálním řešením jak pro vlastní bydlení, tak jako chytrá investice v rychle se rozvíjející lokalitě.
Další nabídku bytů je možné nalézt na našich webových stránkách.
Údaje k nemovitosti
| Kategorie | Byty 2+kk |
| Lokalita | Vosátkova, Praha - Kamýk |
| Okres | území Hlavního města Prahy |
| Vlastnictví | Osobní |
| Užitná plocha | 50 m² |
| Počet podlaží | 9 |
| Podlaží umístění | 7. NP |
| Stav objektu | Novostavba |
| Budova | Skeletová |
| Lodžie | ano (5 m²) |














