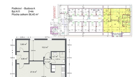
Prodej bytu 2+kk 62 m², Břeclav

- Adresa Břeclav
- Ev. č. RT1134-A4.11
- Typ byty 2+kk
- Plocha 62 m²
- Vlastnictví osobní
5 620 000 Kč (90 645 Kč za m²)
včetně provize
Prodej bytu 2+kk, 62,3 m² - Břeclav
Nabízíme krásný byt 2+kk k prodeji v Břeclavi. S plochou užitnou 62,3 m² poskytuje dostatek prostoru pro pohodlné bydlení pro jednotlivce nebo pár. Byt se nachází v podkroví a disponuje moderním a útulným interiérem, je také vybaven vlastní klimatizací, tím zajistí příjemné a komfortní prostředí po celý rok. K bytu přináleží kóje s vlastní přípojkou elektřiny. 
Byt je součástí projektu Rezidence Za Bankou, jehož stavba započala v Prosinci 2024. Aktuálně jsou zde již vyhotoveny všechny jednotky včetně vnitřních příček, z velké části hotová fasáda, kde zbývá pouze část, kde se v následujících dnech bude budovat výtah. Dále se začíná s obkládáním koupelen. Dokončení projektu je v plánu na Q3/Q4 letošního roku. 
V blízkosti se nachází veškerá občanská vybavenost, restaurace, obchody a zastávky MHD. Tato nemovitost je ideální pro ty, kteří hledají klidné a útulné bydlení v atraktivní lokalitě.
Údaje k nemovitosti
| Kategorie | Byty 2+kk | 
| Lokalita | Břeclav | 
| Okres | Břeclav | 
| Vlastnictví | Osobní | 
| Užitná plocha | 62 m² | 
| Podlaží umístění | 4. NP | 
| Stav objektu | Po rekonstrukci | 
| Budova | Cihlová | 
















