Pronájem skladu 273 m², Brno - Horní Heršpice

- Adresa Brno - Horní Heršpice
- Ev. č. RT1262-000170-7-2
- Typ sklady
- Plocha 273 m²
50 000 Kč za měsíc (2 198 Kč za m²/rok)
+ energie + služby areálu 5200,-Kč / měs., bez DPH
Skladově / výrobní prostory s kancelářským zázemím u D1
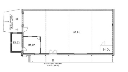
Nabízíme k pronájmu prostory vhodné na sklady, popř lehkou výrobu s kancelářským zázemím v blízkosti dálnice D1. Nabízené prostory se skládají ze samostatně stojící haly s rampou s kancelářskou vestavbou a vestavbou pro skladníka. Sociální zázemí je v sousední budově. Hala má velikost 272,70m² a rampa 35,50m². Výška stropu 4m, vjezd rolovacími vraty o šířce 2,5m.
Pronájem parkovacího místa 630,- Kč / měs.
Půdorysy a další info k nabízeným komerčním prostorám Vám rádi poskytneme v RK.
Mimořádně nehospodárná G
Údaje k nemovitosti
| Kategorie | Sklady |
| Lokalita | Brno - Horní Heršpice |
| Okres | Brno-město |
| Užitná plocha | 273 m² |
| Plocha skladů | 273 m² |
| Počet podlaží | 1 |
| Podlaží umístění | 1. NP |
| Stav objektu | Dobrý |
| Budova | Smíšená |
| Typ domu | Přízemní |
| Zástavba | Komerční |
| Datum nastěhování | 1. prosinec 2025 |
| Zařízený | Ne |
| Parkování | Ano |
| Výtah | ne |
| Komunikace | Asfaltová |
| Telekomunikace | Telefon, Internet, Kabelové rozvody |
| Doprava | Dálnice, Silnice, MHD |
| Voda | Dálkový vodovod |
| Elektřina | 230V |
| Plyn | Plynovod |
| Odpad | Veřejná kanalizace |












