Prodej bytu 2+kk 50 m², Praha

- Adresa Vosátkova, Praha
- Ev. č. RT1299-1094 - NVSTB - KMK
- Typ byty 2+kk
- Plocha 50 m²
- Vlastnictví osobní
8 448 000 Kč (168 960 Kč za m²)
Včetně DPH a poplatků. Cena nezahrnuje sklep a parkovací stání.
Prodej bytu 2+kk 53,30 m², Praha - Kamýk
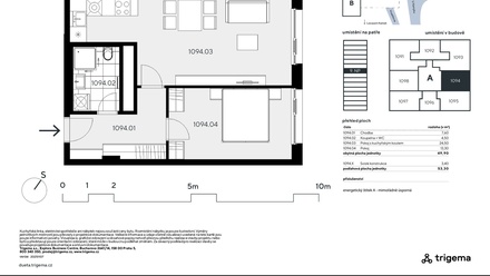
Byt č. 1094: Světlé 2+kk s promyšleným uspořádáním
Výstavba zahájena – 40 % bytů prodáno během 6 měsíců! Neváhejte s výběrem – právě teď máte možnost zvolit si ideální dispozici i orientaci bytu v atraktivním projektu Dueta Kamýk, který spojuje moderní bydlení s přírodou
Byt č. 1094 o dispozici 2+kk a podlahové ploše 53,30 m² je situován ve 9. nadzemním podlaží s orientací na východ, což zajišťuje ranní světlo a příjemnou atmosféru.
Dispozice bytu zahrnuje prostorný obývací pokoj s kuchyňským koutem (24,50 m²), ložnici, koupelnu s WC a chodbu. Obytná plocha činí 49,90 m², doplněná o konstrukční prvky.
· Dobře navržený půdorys 2+kk
· Východní orientace zajišťuje přirozené ranní světlo
· Kompaktní dispozice s efektivním využitím prostoru
· Energetická třída A – mimořádně úsporná
Vhodné pro: Páry nebo jednotlivce, kteří hledají moderní byt s příjemnou atmosférou a efektivním řešením.
Projekt Dueta Kamýk přináší jedinečnou kombinaci klidného bydlení uprostřed přírody a skvělé dostupnosti do centra Prahy díky plánované trase metra D. Lokalita nabízí nejen blízkost lesoparku a rozsáhlé zeleně, ale i atraktivní výhledy, které ocení každý milovník přírody.
Byty jsou vybaveny nadstandardními technologiemi – rekuperací, podlahovým vytápěním, předokenními žaluziemi a kvalitními materiály, které zaručují pohodlí i úsporný provoz.
Dueta Kamýk je ideálním řešením jak pro vlastní bydlení, tak jako chytrá investice v rychle se rozvíjející lokalitě.
Údaje k nemovitosti
| Kategorie | Byty 2+kk |
| Lokalita | Vosátkova, Praha |
| Okres | území Hlavního města Prahy |
| Vlastnictví | Osobní |
| Užitná plocha | 50 m² |
| Počet podlaží | 15 |
| Podlaží umístění | 9. NP |
| Stav objektu | Novostavba |
| Budova | Skeletová |
| Poloha objektu | Samostatný |
| Zástavba | Obytná |
| Rok kolaudace | 2027 |














