Prodej bytu 2+kk 49 m², Praha

- Adresa Vosátkova, Praha
- Ev. č. RT1299-1048 - NVSTB - KMK
- Typ byty 2+kk
- Plocha 49 m²
- Vlastnictví osobní
8 372 000 Kč (170 857 Kč za m²)
Včetně DPH a poplatků. Cena nezahrnuje sklep a parkovací stání.
Prodej bytu 2+kk 52,3 m² - Praha 12, Kamýk
Byt č. 1048: Praktické 2+kk s ideálním rozložením
Výstavba zahájena – 40 % bytů prodáno během 6 měsíců!
Neváhejte s výběrem – právě teď máte možnost zvolit si ideální dispozici i orientaci bytu v atraktivním projektu Dueta Kamýk, který spojuje moderní bydlení s přírodou.
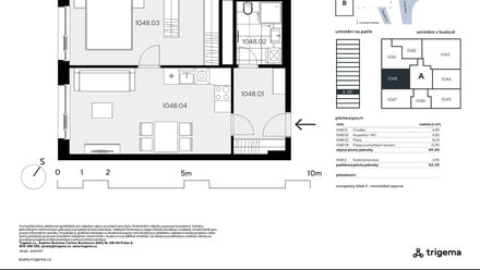
Byt č. 1048 o dispozici 2+kk s podlahovou plochou 52,30 m² je umístěn ve 4. nadzemním podlaží a orientován na západ, což zajišťuje příjemné světlo zejména v odpoledních hodinách.
Vnitřní uspořádání zahrnuje obývací pokoj s kuchyňským koutem, ložnici, koupelnu s WC a chodbu. Obytná plocha činí 49,40 m², doplněná o konstrukční prvky.
• Efektivně navržená dispozice 2+kk
• Západní orientace - přirozené světlo i v podvečerních hodinách
• Vysoká energetická efektivita (třída A)
• Ideální kombinace komfortu a jednoduchosti
Vhodné pro: Páry nebo jednotlivce, kteří hledají útulný, dobře řešený byt v moderním domě.
Projekt Dueta Kamýk přináší jedinečnou kombinaci klidného bydlení uprostřed přírody a skvělé dostupnosti do centra Prahy díky plánované trase metra D. Lokalita nabízí nejen blízkost lesoparku a rozsáhlé zeleně, ale i atraktivní výhledy, které ocení každý milovník přírody.
Byty jsou vybaveny nadstandardními technologiemi – rekuperací, podlahovým vytápěním, předokenními žaluziemi a kvalitními materiály, které zaručují pohodlí i úsporný provoz.
Dueta Kamýk je ideálním řešením jak pro vlastní bydlení, tak jako chytrá investice v rychle se rozvíjející lokalitě.
Údaje k nemovitosti
| Kategorie | Byty 2+kk |
| Lokalita | Vosátkova, Praha |
| Okres | území Hlavního města Prahy |
| Nízkoenergetický | ano |
| Vlastnictví | Osobní |
| Užitná plocha | 49 m² |
| Počet podlaží | 15 |
| Podlaží umístění | 4. NP |
| Stav objektu | Novostavba |
| Budova | Skeletová |
| Sklep | ano |














