Prodej bytu 2+kk 50 m², Praha - Kamýk

- Adresa Vosátkova, Praha - Kamýk
- Ev. č. RT1299-2027 - DVLPR
- Typ byty 2+kk
- Plocha 50 m²
- Vlastnictví osobní
8 925 000 Kč (178 500 Kč za m²)
Včetně DPH a poplatků. Cena nezahrnuje sklep a parkovací stání.
Prodej bytu 2+kk, 52,8 m² - Praha - Kamýk
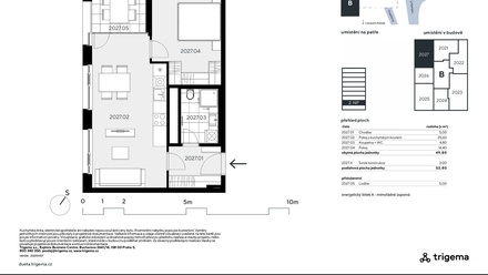
Byt č. 2027: Promyšlené 2+kk se severozápadní orientací
Výstavba zahájena – 40 % bytů prodáno během 6 měsíců!
Neváhejte s výběrem – právě teď máte možnost zvolit si ideální dispozici i orientaci bytu v atraktivním projektu Dueta Kamýk, který spojuje moderní bydlení s přírodou
Byt č. 2027 o dispozici 2+kk s celkovou podlahovou plochou 52,80 m² je umístěn ve 2. nadzemním podlaží projektu Dueta Kamýk. Jeho severozápadní orientace poskytuje klidnou atmosféru a příjemné světlo zejména v odpoledních hodinách.
Dispozici tvoří prostorný obývací pokoj s kuchyňským koutem (25,60 m²), navazující ložnice, chodba a koupelna s WC. Obytná plocha jednotky činí 49,80 m², doplněná o konstrukční části.
Předností jednotky je lodžie o velikosti 5 m2.
- Praktické 2+kk s prostornou hlavní místností
- Severozápadní orientace pro klid a stín
- Vysoká energetická efektivita – třída A
- Ideální dispozice pro každodenní pohodlí
Vhodné pro:
Páry, singles nebo investory hledající útulné a funkční bydlení.
Projekt Dueta Kamýk přináší jedinečnou kombinaci klidného bydlení uprostřed přírody a skvělé dostupnosti do centra Prahy díky plánované trase metra D. Lokalita nabízí nejen blízkost lesoparku a rozsáhlé zeleně, ale i atraktivní výhledy, které ocení každý milovník přírody.
Byty jsou vybaveny nadstandardními technologiemi – rekuperací, podlahovým vytápěním, předokenními žaluziemi a kvalitními materiály, které zaručují pohodlí i úsporný provoz.
Dueta Kamýk je ideálním řešením jak pro vlastní bydlení, tak jako chytrá investice v rychle se rozvíjející lokalitě.
Údaje k nemovitosti
| Kategorie | Byty 2+kk |
| Lokalita | Vosátkova, Praha - Kamýk |
| Okres | území Hlavního města Prahy |
| Nízkoenergetický | ano |
| Vlastnictví | Osobní |
| Užitná plocha | 50 m² |
| Počet podlaží | 9 |
| Podlaží umístění | 2. NP |
| Stav objektu | Projekt |
| Budova | Skeletová |
| Lodžie | ano (5 m²) |














