Prodej bytu 1+kk 40 m², Praha

- Adresa Vosátkova, Praha
- Ev. č. RT1299-1042 - DVLPR - KMK
- Typ byty 1+kk
- Plocha 40 m²
- Vlastnictví osobní
6 689 000 Kč (167 225 Kč za m²)
Včetně DPH a poplatků. Cena nezahrnuje sklep a parkovací stání.
Prodej bytu 1+kk 42,2 m² - Praha 12, Kamýk
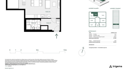
Byt č. 1042: Prostorné 1+kk s chytrým řešením interiéru
Výstavba zahájena – 40 % bytů prodáno během 6 měsíců!
Neváhejte s výběrem – právě teď máte možnost zvolit si ideální dispozici i orientaci bytu v atraktivním projektu Dueta Kamýk, který spojuje moderní bydlení s přírodou.
Byt č. 1042 o dispozici 1+kk s podlahovou plochou 42,20 m² se nachází v 4. nadzemním podlaží a je orientovaný na severozápad, což zajišťuje příjemné odpolední světlo bez přehřívání v létě. Dispozice zahrnuje hlavní obytný prostor s kuchyňským koutem, chodbu a koupelnu s WC. Obytná plocha jednotky činí 39,80 m², doplněná o konstrukční části.
• Prostorný hlavní obytný prostor
• Světlá severozápadní orientace
• Energetická třída A – mimořádně úsporná
Vhodné pro: Singles nebo mladé profesionály hledající komfortní a moderní městské bydlení.
Projekt Dueta Kamýk přináší jedinečnou kombinaci klidného bydlení uprostřed přírody a skvělé dostupnosti do centra Prahy díky plánované trase metra D. Lokalita nabízí nejen blízkost lesoparku a rozsáhlé zeleně, ale i atraktivní výhledy, které ocení každý milovník přírody.
Byty jsou vybaveny nadstandardními technologiemi – rekuperací, podlahovým vytápěním, předokenními žaluziemi a kvalitními materiály, které zaručují pohodlí i úsporný provoz.
Dueta Kamýk je ideálním řešením jak pro vlastní bydlení, tak jako chytrá investice v rychle se rozvíjející lokalitě.
Údaje k nemovitosti
| Kategorie | Byty 1+kk |
| Lokalita | Vosátkova, Praha |
| Okres | území Hlavního města Prahy |
| Nízkoenergetický | ano |
| Vlastnictví | Osobní |
| Užitná plocha | 40 m² |
| Počet podlaží | 15 |
| Podlaží umístění | 4. NP |
| Stav objektu | Projekt |
| Budova | Skeletová |
| Zástavba | Obytná |
| Rok kolaudace | 2027 |














