Prodej bytu 1+kk 48 m², Ostrava

- Adresa Stodolní, Ostrava
- Ev. č. RT1716-00937
- Typ byty 1+kk
- Plocha 48 m²
- Vlastnictví osobní
- Součástí developerského projektu Developerský projekt, Ostrava - Moravská Ostrava
5 850 094 Kč (121 877 Kč za m²)
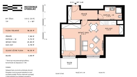
Prodej bytu 1+kk 50,28 m² s balkonem 3,98 m² v projektu Rezidence Stodolní
Nabízíme k prodeji byt 1+kk s balkonem v Rezidenci Stodolní. Byt 3.B.1 o velikosti 50,28 m2 se nachází ve 3. nadzemním podlaží a nabízí výhled na vnitřní zahrady bytového komplexu. K maximálnímu zážitku z bydlení poslouží i balkon o výměře 3,98 m2, který bude skvělým doplňkem pro odpočinek u kávy nebo večerního povídání. Dispozice zahrnuje prostorný obývací pokoj s kuchyní, komfortní ložnici s prostorem pro šatní skříň, koupelnu spojenou s WC a praktickou předsíň.
Byt nabízí flexibilitu díky možnosti chytrého a estetického oddělení jednotlivých zón pomocí stavebně předdefinované příčky, která z oficiální dispozice 1kk byt rozdělí na efektivní a velkorysé 2kk
Rezidence Stodolní představuje nejmodernější bytový projekt v Ostravě z dílny ateliéru Bogle Architects a je součástí prestižní proměny centra města. Nová rezidenční čtvrť s pěší zónou a Galerií PLATO v bezprostřední blízkosti nabízí kombinaci moderního bydlení, klidu a vysokého standardu bezpečí. Nabízený byt je vhodný pro moderní pár, menší rodinu nebo jako investice s výborným potenciálem.
Byt je vybaven plovoucími podlahami, přičemž barevné provedení standardu lze přizpůsobit přání klienta. Kombinace kvalitních oken s trojitým zasklením, solární elektrárny a centrálního horkovodního vytápění zajišťuje nízké provozní náklady. Budovy jsou dle energetického štítku zařazeny do kategorie „B – vysoce úsporné“.
V podzemních garážích Rezidence Stodolní je k dispozici přibližně 120 parkovacích míst. Nabízena budou samostatná parkovací stání, stání se sklepní kójí i samostatné sklepy. Parkovací místa a sklepy nejsou zahrnuty v ceně bytu. Garáže budou vybaveny přípravou pro dobíjení elektromobilů, což zaručuje pohodlí i do budoucna.
Výstavba projektu Rezidence Stodolní je již zahájena, kolaudace je plánována na konec roku 2027.
Podrobné informace o projektu a aktuální nabídku volných bytů naleznete na webových stránkách rezidencestodolni.cz.
Pro doplňující informace nás můžete kontaktovat telefonicky nebo osobně v kancelářích Organica – Scott-Weber,
náměstí Biskupa Bruna 3399/5, 702 00 Moravská Ostrava.
Schůzky si prosím rezervujte předem e-mailem nebo telefonicky.
Těšíme se na setkání s Vámi.
Údaje k nemovitosti
| Kategorie | Byty 1+kk |
| Lokalita | Stodolní, Ostrava |
| Okres | Ostrava-město |
| Vlastnictví | Osobní |
| Užitná plocha | 48 m² |
| Počet podlaží | 5 |
| Podlaží umístění | 3. NP |
| Stav objektu | Projekt |
| Budova | Smíšená |
| Poloha objektu | Samostatný |
| Výtah | ano |
| Balkón | ano (4 m²) |
| Komunikace | Asfaltová |
| Doprava | Vlak, MHD, Autobus |
| Voda | Dálkový vodovod |
| Odpad | Veřejná kanalizace |
| Topné těleso | Radiátory |
| Zdroj topení | Centrální dálkové |

náměstí Biskupa Bruna 3399/5
Ostrava
+420 777 114 302
nesladek@estyholding.cz
Zobraz 14 nabídek




























