Prodej bytu 1+kk 55 m², Břeclav

- Adresa Břeclav
- Ev. č. RT1134-A1.01
- Typ byty 1+kk
- Plocha 55 m²
- Vlastnictví osobní
4 960 000 Kč (90 182 Kč za m²)
včetně provize
Prodej bytu 1+kk, 55,7 m² - Břeclav
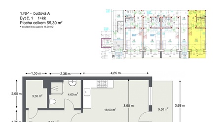
Nabízíme krásný byt 1+kk k prodeji v Břeclavi. S plochou 55,7 m² poskytuje dostatek prostoru pro pohodlné bydlení pro jednotlivce nebo pár. Byt se nachází v přízemí a disponuje moderním a útulným interiérem, je také vybaven vlastní klimatizací, tím zajistí příjemné a komfortní prostředí po celý rok. Vzhledem k výšce stropu, která činí 4,5 m na bytu naleznete i galerii, která je určená například pro vybudováno ložnice. Dále byt disponuje terasou o velikosti 5,5 m2. K bytu přináleží kóje s vlastní přípojkou elektřiny. 
Byt je součástí projektu Rezidence Za Bankou, jehož stavba započala v Prosinci 2024. Aktuálně jsou zde již vyhotoveny všechny jednotky včetně vnitřních příček, z velké části hotová fasáda, kde zbývá pouze část, kde se v následujících dnech bude budovat výtah. Dále se začíná s obkládáním koupelen. Dokončení projektu je v plánu na Q3/Q4 letošního roku. 
V blízkosti se nachází veškerá občanská vybavenost, restaurace, obchody a zastávky MHD. Tato nemovitost je ideální pro ty, kteří hledají klidné a útulné bydlení v atraktivní lokalitě.
V případě zájmu nás neváhejte kontaktovat o prohlídku.
Údaje k nemovitosti
| Kategorie | Byty 1+kk | 
| Lokalita | Břeclav | 
| Okres | Břeclav | 
| Vlastnictví | Osobní | 
| Užitná plocha | 55 m² | 
| Podlaží umístění | 1. NP | 
| Stav objektu | Po rekonstrukci | 
| Budova | Cihlová | 
| Umístění objektu | Centrum obce | 
| Zástavba | Obchodní a obytná | 
| Výtah | ano | 
| Terasa | ano (5 m²) | 

















