Pronájem skladu 308 m², Brno-jih

- Adresa Brno-jih
- Ev. č. RT1046-BK142279
- Typ sklady
- Plocha 308 m²
50 000 Kč za měsíc (1 948 Kč za m²/rok)
Neplatíte provizi RK!, cena k jednání
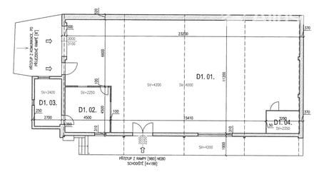
PRONÁJEM VYTÁPĚNÉ HALY 308 m2
Bezprovině pro zájemce nabízím k pronájmu vytápěnou halu 308 m2 v areálu na viditelném místě. Vlastní hala má výměru 273 m2 a krytá rampa 35 m2. Součástí haly je vestavba dvou kanceláří a kuchyňky. Vstup do haly je sekčními vraty v úrovni terénu a z rampy, dojezd pro vozidla do velikost 8 t. Vytápění plynovým roburem. Díky poloze vhodné i jako prodejní sklad.
Průkaz energetické náročnosti v řešení dle vyhlášky, údaj bude aktualizován, proto uvádíme nyní třídu G. Mapa nemusí zobrazovat přesnou polohu nemovitosti.
Pro zaslání podrobnějších informací vyplňte prosím kontaktní formulář u inzerátu a připojte stručné představení vaší firmy/(IČ) a záměr využití prostor. Tyto údaje mi pomohou ověřit vhodnost nabídky pro vaše potřeby a zaslat vám co nejdříve všechny detaily.
Těším se na váš zájem a na možnost vám pomoci najít ideální prostory!
Údaje k nemovitosti
| Kategorie | Sklady |
| Lokalita | Brno-jih |
| Okres | Brno-město |
| Užitná plocha | 308 m² |
| Stav objektu | Dobrý |
| Budova | Smíšená |
| Typ domu | Přízemní |
| Poloha objektu | V bloku |
| Datum nastěhování | Ihned |
| Doprava | Dálnice, MHD |













