Pronájem kanceláře 402 m², Frýdek-Místek - Frýdek

- Adresa Bruzovská, Frýdek-Místek - Frýdek
- Ev. č. RT1055-IETO837982
- Typ kanceláře
- Plocha 402 m²
140 Kč za m²/měsíc (1 680 Kč za m²/rok)
+ zálohy na služby, provize RK ve výši 1 x nájem + DPH
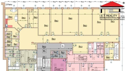
Pronájem kanceláře 12 - 402 m² - Sedliště - Frýdek-Místek
Nabízíme k pronájmu kanceláře s celkovou plochou od 12 m² až po 402 m². Tyto prostory se nachází ve 3. nadzemním podlaží v průmyslovém areálu v Sedlištích, pouhé 2 km od Frýdku - Místku a byly nově vybudovány.
První část nabízených kanceláří o velikosti od 12 m² po 31 m² s cenou nájmu od 236 po 249 Kč/m² a cenou služeb od 1107 Kč po 2715 Kč/měsíc je možné pronajmout jednotlivě a mají společné sociální zázemí s kuchyňkou. Součástí je vlastní zabezpečovací systém. V případě zájmu je možné pronajmou také jako celek za zvýhodněnu cenu (176 m² kanceláří + sociální zázemí) .
Druhou částí jsou dva soubory kanceláří s plochou 110 m² a 116 m² s cenou nájmu 140 Kč/m² a cenou služeb 6820 Kč a 7192 Kč/měsíc, které mají každé vlastní sociální zázemí a kuchyni. Součástí pronájmu je tablet zajištující přístup do budovy a kanceláře. Stejně tak je součástí vlastní zabezpečovací systém.
Možnost umístění reklamy v okolí domu a rovněž umístění sídla firmy na uvedené adrese. Kanceláře se nachází v průmyslové zóně v Sedlištích a v areálu působí několik výrobních firem i administrativních celků. Součástí služeb je cena za teplo, vodu, elektřinu, zabezpečovací systém a kamerový dohled společných prostor a úklid příjezdové cesty. V případě zájmu je možno si také pronajmou parkování pro osobní automobily a internet, který je již zavedený na objektu.
Doporučujeme osobní prohlídku
Údaje k nemovitosti
| Kategorie | Kanceláře |
| Lokalita | Bruzovská, Frýdek-Místek - Frýdek |
| Okres | Frýdek-Místek |
| Užitná plocha | 402 m² |
| Plocha kanceláří | 402 m² |
| Počet podlaží | 3 |
| Podlaží umístění | 3. NP |
| Stav objektu | Velmi dobrý |
| Budova | Smíšená |
| Typ domu | Patrový |
| Poloha objektu | Samostatný |
| Umístění objektu | Okraj obce |
| Zástavba | Průmyslová |
| Datum nastěhování | Ihned |
| Parkování | Ano |

Stodolní 1293/3
Ostrava
+420 727 983 315
ostrava@iet-reality.cz
Zobraz 68 nabídek






















