Pronájem kanceláře 188 m², Brno-sever

- Adresa Slavíčkova 53/1, Brno - Lesná
- Ev. č. RT1609-910496
- Typ kanceláře
- Plocha 188 m²
432 400 Kč za rok (2 300 Kč za m²/rok)
K ceně budou připočteny služby ve výši 2060,- Kč/m2/rok + DPH. Bez kauce a provize.
Pronájem kancelářského prostoru, 188 m², Brno - Slavíčkova
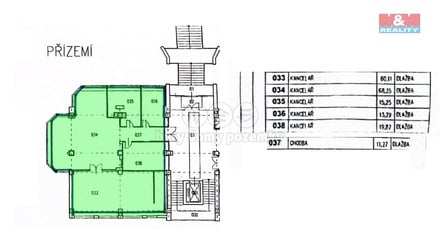
Bez kauce a provize. Nabízíme k pronájmu kancelářské prostory o užitné ploše 188 m² v klidné části obce Brno - Lesná. Tyto kanceláře se nacházejí v 1. podlaží cihlové budovy s celkem 7 nadzemními podlažími a 1 podzemním podlažím. Prostory zahrnují 5 místností, které jsou ideální pro menší a středně velké firmy hledající klidné a přitom strategicky umístěné zázemí. Nemovitost je v dobrém stavu, připravena k okamžitému využití. Díky své poloze nabízí výbornou dostupnost do centra města a zároveň klidné pracovní prostředí. Nepropásněte tuto jedinečnou příležitost pro rozvoj vašeho podnikání v atraktivní lokalitě. Služby se rozpočítávají podle plochy kanceláře, objekt nemá vlastní měřiče, ale ročně probíhá zúčtování za budovu. V 1. PP je závodní jídelna, kterou je možno využívat, stejně jako terasu přiléhající přímo ke kanceláři. Do objektu je přístup časově neomezený. Pro více informací nás neváhejte kontaktovat.
Údaje k nemovitosti
| Kategorie | Kanceláře |
| Lokalita | Slavíčkova 53/1, Brno - Lesná |
| Okres | Brno-město |
| Vlastnictví | Osobní |
| Užitná plocha | 188 m² |
| Počet podlaží | 8 |
| Podlaží umístění | 1. NP |
| Stav objektu | Dobrý |
| Budova | Cihlová |
| Typ domu | Patrový |
| Umístění objektu | Klidná část obce |
| Zařízený | Ne |
| Bezbariérový | ne |
| Výtah | ano |
| Terasa | ano |
| Telekomunikace | Internet |
| Doprava | Silnice, MHD |
| Voda | Dálkový vodovod |
| Elektřina | 230V |
| Odpad | Veřejná kanalizace |
| Zdroj topení | Ústřední dálkové |
| Zdroj teplé vody | Centrální dálkový ohřev |











