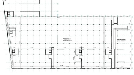
Prodej obchodního prostoru 3 447 m², Hradec Králové - Pražské Předměstí

- Adresa Kollárova 1714/1, Hradec Králové
- Ev. č. RT1583-SKOLL3447
- Typ obchodní prostory
- Plocha 3 447 m²
49 000 Kč za m²
bez DPH, + provize RK
Atraktivní nebytové prostory v Hradci Králové
Až 3.500 m² prostoru v centru Hradce Králové – výkladce, frekventovaná poloha a naprostá flexibilita využití
Hledáte reprezentativní prostory pro svůj podnik, značku nebo investici?
V samém srdci Hradce Králové, jen pár kroků od hlavního vlakového i autobusového nádraží, přímo u hotelu Černigov a v docházkové vzdálenosti od Riegrova náměstí, nabízíme výjimečně flexibilní komerční prostory o celkové rozloze až 3.500 m².
Základní jednotka má výměru 444 m², další části lze připojit až do výše celé plochy, a to po modulárních blocích od cca 600 m². Díky velkým výkladcům do ulice je prostor ideální pro jakýkoli provoz, který chce být vidět – ať už jde o gastronomii, showroom, obchod, služby, fitness, kanceláře nebo zdravotnické zařízení.
Stav: shell core – čistý základ, který si přizpůsobíte do posledního detailu.
Veškeré inženýrské sítě jsou zavedeny, včetně plynové přípojky.
Možnosti:
Pronájem 10,50 EUR/m2
Koupě – cena: 49.000 Kč/m²
Rozšíření až na 3.500 m² dle potřeb
Proč právě sem:
- Strategická poloha: vlak, autobus, hotel, centrum – vše doslova za rohem
- Vysoká frekvence lidí denně – ideální pro provozy závislé na pohybu zákazníků
- Výkladce pro skvělou viditelnost a přirozený marketing
- Maximální flexibilita prostoru – růst bez nutnosti stěhování
- Možnost individuálního řešení podle vašeho konceptu
Zaujalo vás to? Domluvme si prohlídku. Tento prostor může být začátkem něčeho velkého.
Údaje k nemovitosti
| Kategorie | Obchodní prostory |
| Lokalita | Kollárova 1714/1, Hradec Králové |
| Okres | Hradec Králové |
| Užitná plocha | 3.447 m² |
| Plocha kanceláří | 3.447 m² |
| Stav objektu | Novostavba |
| Budova | Skeletová |
| Typ domu | Přízemní |
| Umístění objektu | Centrum obce |
| Zařízený | Ne |
| Míst k parkování | 40 |
| Parkování | Ano |








































