Prodej činžovního domu 200 m², Brno - Královo Pole

- Adresa Kollárova, Brno - Královo Pole
- Ev. č. RT1138-01817
- Typ činžovní domy
- Plocha 200 m²
info v RK
Prodej, Činžovní domy, 200 m² - Brno - Královo Pole
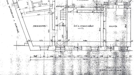
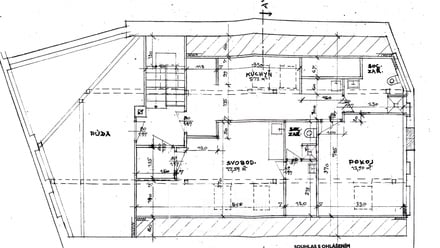
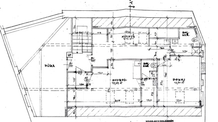
K prodeji: polyfunční dům na ulici Kollárova, Brno - Královo Pole
Nabízíme k prodeji dům v atraktivní části Královo Pole v Brně. Tato nemovitost představuje skvělou investiční příležitost díky kombinaci komerčních a bytových prostor.
Zastavěná plocha domu 127 m2 a má 2 podlaží.
Komerční prostory:
Masážní salón o velikosti 15m²
Prostorný kadeřnický salón o velikosti 30m²
Prostor rozdělený na 3 bytové jednotky:
Byt 2 +kk, 36m²
Byt 1+kk, 23m²
Byt 1+kk, 23 m²
V domě je centrální domovní topení (kotel), dům je připojený na kanalizaci, vodu a elektřinu.
Strategická poloha a univerzálnost prostor dělají z této nemovitosti vynikající volbu pro zkušené i začínající investory.
Nenechte si ujít příležitost vlastnit tento unikátní objekt. Pro další informace a domluvení prohlídky nás neváhejte kontaktovat.
Údaje k nemovitosti
| Kategorie | Činžovní domy |
| Lokalita | Kollárova, Brno - Královo Pole |
| Okres | Brno-město |
| Užitná plocha | 200 m² |
| Zastavěná plocha | 127 m² |
| Stav objektu | Velmi dobrý |
| Budova | Cihlová |
| Typ domu | Patrový |
| Výtah | ne |

Olomoucká 1292/17a
Brno
+420 777 845 710
info@homepartners.cz
Zobraz 13 nabídek











