Prodej bytu 3+kk 68 m², Praha

- Adresa Vosátkova, Praha
- Ev. č. RT1299-1073 - DVLPR - KMK
- Typ byty 3+kk
- Plocha 68 m²
- Vlastnictví osobní
12 212 000 Kč (179 588 Kč za m²)
Včetně DPH a poplatků. Cena nezahrnuje sklep a parkovací stání.
Prodej bytu 3+kk 73,4 m², Praha - Kamýk
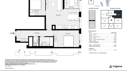
Byt č. 1073: Prostorné 3+kk s lodžií a dvěma toaletami
Výstavba zahájena – 40 % bytů prodáno během 6 měsíců!
Neváhejte s výběrem – právě teď máte možnost zvolit si ideální dispozici i orientaci bytu v atraktivním projektu Dueta Kamýk, který spojuje moderní bydlení s přírodou
Byt č. 1073 o dispozici 3+kk a celkové podlahové ploše 73,40 m² se nachází v 7. nadzemním podlaží a je orientován na sever, což zajišťuje odpolední světlo a klidné prostředí.
Dispozici tvoří obývací pokoj s kuchyňským koutem, dvě samostatné ložnice, chodba, koupelna s WC a samostatné WC. Obytná plocha činí 68,30 m², doplněná o lodžii (5,40 m²).
• Skvěle řešené 3+kk s oddělenými ložnicemi
• Dvě toalety – komfort pro vícečlennou domácnost
• Lodžie pro venkovní posezení či relax
• Energetická třída A – mimořádně úsporná
Vhodné pro: Rodiny s dětmi nebo páry, které hledají prostorné a funkční bydlení s důrazem na pohodlí.
Projekt Dueta Kamýk přináší jedinečnou kombinaci klidného bydlení uprostřed přírody a skvělé dostupnosti do centra Prahy díky plánované trase metra D. Lokalita nabízí nejen blízkost lesoparku a rozsáhlé zeleně, ale i atraktivní výhledy, které ocení každý milovník přírody.
Byty jsou vybaveny nadstandardními technologiemi – rekuperací, podlahovým vytápěním, předokenními žaluziemi a kvalitními materiály, které zaručují pohodlí i úsporný provoz.
Dueta Kamýk je ideálním řešením jak pro vlastní bydlení, tak jako chytrá investice v rychle se rozvíjející lokalitě.
Údaje k nemovitosti
| Kategorie | Byty 3+kk |
| Lokalita | Vosátkova, Praha |
| Okres | území Hlavního města Prahy |
| Nízkoenergetický | ano |
| Vlastnictví | Osobní |
| Užitná plocha | 68 m² |
| Počet podlaží | 15 |
| Podlaží umístění | 7. NP |
| Stav objektu | Projekt |
| Budova | Skeletová |
| Poloha objektu | Samostatný |
| Zástavba | Obytná |
| Rok kolaudace | 2027 |
| Míst k parkování | 1 |
| Parkování | Ano |
| Lodžie | ano (5 m²) |














