Prodej bytu 3+kk 80 m², Olomouc

- Adresa Loudova, Olomouc
- Ev. č. RT1374-00897
- Typ byty 3+kk
- Plocha 80 m²
- Vlastnictví osobní
8 837 000 Kč (110 463 Kč za m²)
včetně provize
Prodej novostavby bytu 3+kk, Olomouc - Loudova, SLAVONÍNSKÉ ZAHRADY - dům B2
Z pověření developera Vám realitní kancelář ALLE reality&development s.r.o. v exkluzivním zastoupení nabízí již V. etapu úspěšného Projektu Slavonínské zahrady, jež navazuje prodejem – budovy B. Projekt umožňuje svým rezidentům dostupné bydlení v příjemné a klidné lokalitě města Olomouce. Více informací na webových stránkách alle.
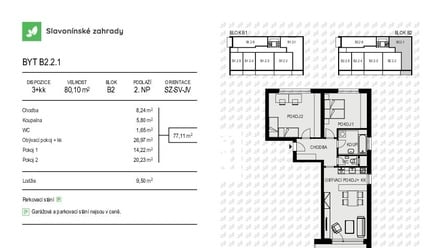
Byt B2.2.1 o dispozici 3+kk má podlahovou plochu 80,1 m², terasa o velikosti 9,5 m² a nachází se ve 2.NP bytového domu s nízkým počtem bytových jednotek.
Velkou předností lokality je dostatek zeleně, odpočinková zóna kolem přírodního rybníku Hamrys, cyklistická stezka, to vše pro čas odpočinku. Skvělá občanská vybavenost, vynikající dostupnost MHD včetně nově prodloužené tramvajové tratě, a bezproblémový výjezd na dálnici naopak usnadní pracovní část dne.
Vysoký komfort bydlení je zajištěn moderním standardním vybavením: podlahové vytápění po celé ploše jednotek, obložkové zárubně, vinylové podlahy, keramické obklady - vše dle volby klienta a také základní příprava pro venkovní žaluzie. Garážová stání a komory k dokoupení jsou samozřejmostí. Vyberte si své vysněné bydlení včas!
Klient hradí nad rámec kupní ceny poplatek za právní a administrativní servis.
Údaje k nemovitosti
| Kategorie | Byty 3+kk |
| Lokalita | Loudova, Olomouc |
| Okres | Olomouc |
| Vlastnictví | Osobní |
| Užitná plocha | 80 m² |
| Počet podlaží | 4 |
| Podlaží umístění | 2. NP |
| Stav objektu | Novostavba |
| Budova | Cihlová |
| Poloha objektu | Samostatný |
| Umístění objektu | Klidná část obce |
| Zástavba | Obytná |
| Bezbariérový | ano |
| Výtah | ano |
| Terasa | ano (10 m²) |
| Komunikace | Asfaltová |
| Doprava | Vlak, Dálnice, Silnice, MHD, Autobus |
| Voda | Dálkový vodovod |
| Elektřina | 230V |
| Odpad | Veřejná kanalizace |

Wellnerova 1354/29
Olomouc
+420 792 301 188
lenka.nerusilova@alle.cz
Zobraz 33 nabídek













