Prodej bytu 2+kk 54 m², Praha - Žižkov

- Adresa Jana Želivského 2200/2, Praha 3 - Žižkov
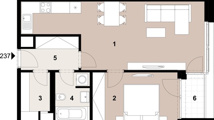
- Ev. č. RT1192-189-08-237
- Typ byty 2+kk
- Plocha 54 m²
- Vlastnictví osobní
9 770 566 Kč (180 936 Kč za m²)
Prodej, Byt 2+kk, 54 m² - Praha 3 - Žižkov
Nabízíme k prodeji byt 189-08-237 s dispozicí 2+kk (54,2 m2), terasou (3 m2), přiřazeným sklepem a parkovacím stáním v novém projektu Rezidence Parková čtvrť na Praze 3.
Byty s dispozicí od 1+kk do 4+kk budou dokončené v luxusním standardu provedení Rezidence, ve kterém budou dřevěné podlahy s podlahovým vytápěním, designová koupelna, předokenní žaluzie či klimatizace a rekuperace pro zajištění komfortního a zdravého bydlení. Architektonicky unikátní domy se zelenými střechami jsou obloženy kamenem a dalšími designovými prvky. V projektu se počítá i s přípravou pro napojení nabíjení elektromobilů.
Parková čtvrť leží v srdci dynamicky se rozvíjejícího Nového Žižkova v Praze 3. Tato část města prochází velkou proměnou a stává se jednou z nejžádanějších a nejvíc trendy čtvrtí v Praze, podobně jako sousední Karlín. Ceny nových bytů na Žižkově nyní rostou nejvíce v celé metropoli. Parková čtvrť je zcela unikátní rezidenční lokalitou s luxusními byty v širším centru města, jen 5 minut chůze od metra. V okolí je velké množství zeleně pro relaxaci, kompletní občanská vybavenost i bohaté možnosti pro kulturní či sportovní vyžití. Podobu nové čtvrti navrhlo 9 různých prestižních architektonických ateliérů.
Parkovací stání a sklepy nejsou zahrnuty v ceně z důvodu snadnějšího a přehlednějšího porovnání napříč nabídkou na trhu nového bydlení.
Údaje k nemovitosti
| Kategorie | Byty 2+kk |
| Lokalita | Jana Želivského 2200/2, Praha 3 - Žižkov |
| Okres | území Hlavního města Prahy |
| Vlastnictví | Osobní |
| Užitná plocha | 54 m² |
| Počet podlaží | 11 |
| Podlaží umístění | 1. NP |
| Stav objektu | Ve výstavbě |
| Budova | Skeletová |
| Datum nastěhování | 31. leden 2027 |
| Zařízený | Ne |
| Bezbariérový | ano |
| Míst k parkování | 1 |
| Parkování | Ano |
| Výtah | ano |
| Terasa | ano (3 m²) |
| Sklep | ano (5 m²) |
| Komunikace | Asfaltová |
| Telekomunikace | Telefon, Internet |
| Doprava | Vlak, Silnice, MHD, Autobus |
| Voda | Dálkový vodovod |
| Elektřina | 230V |
| Odpad | Veřejná kanalizace |
























