Prodej bytu 2+kk 55 m², Praha - Smíchov

- Adresa Nádražní 2584/2, Praha 5 - Smíchov
- Ev. č. RT1299-6054 - NVSTB
- Typ byty 2+kk
- Plocha 55 m²
- Vlastnictví osobní
11 347 773 Kč (206 323 Kč za m²)
Včetně DPH a poplatků. Cena nezahrnuje sklep a parkovací stání.
Prodej bytu 2+kk 58,60 m², LIHOVAR
Staňte se součástí výjimečného projektu!
Smíchov se mění – a vy můžete být u toho. Třetí a zároveň poslední etapa výjimečného projektu uzavírá vznik nové čtvrti, kde se industriální styl snoubí s moderní architekturou. Na místě vyroste živý prostor plný obchodů, služeb a kulinářských zážitků v rámci rozsáhlého food courtu. Nový Dvorecký most propojí Smíchov s Podolím a rekonstrukce Smíchovského nádraží dodá celé lokalitě ještě větší hodnotu.
Prémiové byty od renomovaného developera Trigema ve vyšších patrech nabídnou neopakovatelné výhledy na Vltavu, Vyšehrad a Pankrác. Poslední šance stát se součástí místa, které definuje budoucnost této části Prahy.
Velkorysé 2+kk s lodžií a západní orientací
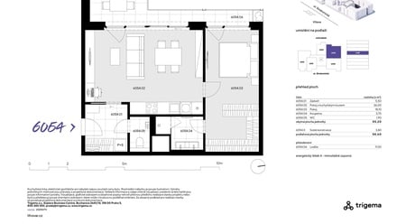
Byt č. 6054 o dispozici 2+kk a celkové podlahové ploše 58,60 m² se nachází v 5. nadzemním podlaží a je orientovaný na západ, což zajišťuje příjemné světlo v odpoledních hodinách.
Obytná plocha činí 55,20 m², doplněná o svislé konstrukce. Benefitem je prostorná lodžie poskytující 9 m² pro Vaši relaxaci.
• Prostorná lodžie ideální k posezení
• Skvělá dispozice s odděleným WC
• Západní orientace pro odpolední pohodu
• Energetická třída A – mimořádně úsporná
O pohodlí se starají moderní technologie – rekuperace, stropní chlazení, exteriérové žaluzie či izolační trojskla. Vše je řízeno chytrým systémem Loxone, který zajišťuje příjemné a úsporné bydlení v každém ročním období.
Byty v LIHOVARU jsou navrženy pro maximální komfort a praktičnost. Každý byt má vlastní terasu nebo lodžii. Promyšlené dispozice přinášejí dostatek světla a vzdušnost, přičemž ideální domov tu najde jak náročný singl, tak rodina s dětmi.
Fotografie interiéru jsou pouze referenční.
Pro prohlídku nemovitosti kontaktujte makléře společnosti.
Nabídka dalších bytů na stránkách developerského projektu.
Údaje k nemovitosti
| Kategorie | Byty 2+kk |
| Lokalita | Nádražní 2584/2, Praha 5 - Smíchov |
| Okres | území Hlavního města Prahy |
| Vlastnictví | Osobní |
| Užitná plocha | 55 m² |
| Počet podlaží | 8 |
| Podlaží umístění | 5. NP |
| Stav objektu | Novostavba |
| Budova | Cihlová |
| Poloha objektu | V bloku |
| Umístění objektu | Centrum obce |
| Zástavba | Obytná |
| Bezbariérový | ano |
| Výtah | ano |
| Lodžie | ano (9 m²) |
| Doprava | Vlak, Dálnice, Silnice, MHD, Autobus |
































