Prodej bytu 2+kk 46 m², Praha

- Adresa Vosátkova, Praha
- Ev. č. RT1299-1047 - NVSTB - KMK
- Typ byty 2+kk
- Plocha 46 m²
- Vlastnictví osobní
8 363 000 Kč (181 804 Kč za m²)
Včetně DPH a poplatků. Cena nezahrnuje sklep a parkovací stání.
Prodej bytu 2+kk 48,9 m², Praha - Kamýk
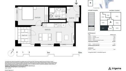
Byt č. 1047: Byt 2+kk s jihozápadní orientací
Výstavba zahájena – 40 % bytů prodáno během 6 měsíců!
Neváhejte s výběrem – právě teď máte možnost zvolit si ideální dispozici i orientaci bytu v atraktivním projektu Dueta Kamýk, který spojuje moderní bydlení s přírodou
Byt č. 1047 o dispozici 2+kk a podlahové ploše 48,9 m² je situován ve 4. nadzemním podlaží s orientací na jihozápad, což zajišťuje dostatek přirozeného světla, a zvláště příjemnou podvečerní atmosféru.
Dispozice bytu zahrnuje prostorný obývací pokoj s kuchyňským koutem (22,30 m²), ložnici, koupelnu s WC a chodbu. Obytná plocha činí 46 m², doplněná o konstrukční prvky.
Předností jednotky je lodžie o velikosti 5,4 m2.
- Jihozápadní orientace pro maximální světlo
- Lodžie s výhledem na západ slunce
- Kompaktní dispozice s efektivním využitím prostoru
- Energetická třída A – mimořádně úsporná
Vhodné pro: Páry nebo jednotlivce, kteří hledají moderní byt s příjemnou atmosférou a efektivním řešením.
Projekt Dueta Kamýk přináší jedinečnou kombinaci klidného bydlení uprostřed přírody a skvělé dostupnosti do centra Prahy díky plánované trase metra D. Lokalita nabízí nejen blízkost lesoparku a rozsáhlé zeleně, ale i atraktivní výhledy, které ocení každý milovník přírody.
Byty jsou vybaveny nadstandardními technologiemi – rekuperací, podlahovým vytápěním, předokenními žaluziemi a kvalitními materiály, které zaručují pohodlí i úsporný provoz.
Dueta Kamýk je ideálním řešením jak pro vlastní bydlení, tak jako chytrá investice v rychle se rozvíjející lokalitě.
Údaje k nemovitosti
| Kategorie | Byty 2+kk |
| Lokalita | Vosátkova, Praha |
| Okres | území Hlavního města Prahy |
| Vlastnictví | Osobní |
| Užitná plocha | 46 m² |
| Počet podlaží | 15 |
| Podlaží umístění | 4. NP |
| Stav objektu | Novostavba |
| Budova | Skeletová |
| Poloha objektu | Samostatný |
| Zástavba | Obytná |
| Rok kolaudace | 2027 |
| Lodžie | ano (5 m²) |














