Prodej bytu 2+kk 51 m², Kladno

- Adresa Ke stadionu, Kladno
- Ev. č. RT1371-PK.C2.101
- Typ byty 2+kk
- Plocha 51 m²
- Vlastnictví osobní
6 329 145 Kč (124 101 Kč za m²)
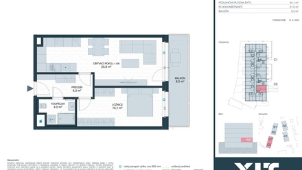
Prodej, Byty 2+kk, 54 m²
Byt 2+kk o celkové rozloze 54,1 m² s balkónem 8,5 m² je situován v 1.NP projektu PORTTI Kladno II. Cena zahrnuje bytovou jednotku, sklepní kóji a DPH. K bytu náleží i parkovací stání, které není zahrnuto v ceně. Cena parkovacího stání od 448 000 Kč včetně DPH.
V rámci našeho prvního mimopražského projektu PORTTI Kladno II nabízíme nové byty v Kladně na prodej. Ve dvou moderních bytových domech vznikne celkem 102 bytů o dispozicích 1+kk až 4+kk a rozloze od 28 m² do 99 m², k nimž budou náležet balkony, terasy či předzahrádky. V parteru vybudujeme rovněž dvě komerční jednotky.
V každém bytovém domě bude umístěna kočárkárna a venkovní místo pro mytí kol a psů. Samozřejmostí jsou sklepy a parkovací stání ve vnitřních krytých garážích, jejichž střechy pokryje zeleň. K dispozici bude také venkovní parkování.
Údaje k nemovitosti
| Kategorie | Byty 2+kk |
| Lokalita | Ke stadionu, Kladno |
| Okres | Kladno |
| Vlastnictví | Osobní |
| Užitná plocha | 51 m² |
| Podlahová plocha | 54 m² |
| Celková plocha | 54 m² |
| Počet podlaží | 5 |
| Podlaží umístění | 2. NP |
| Stav objektu | Ve výstavbě |
| Budova | Smíšená |
| Rok kolaudace | 2026 |
| Rok výstavby | 2025 |
| Parkování | Ano |
| Výtah | ano |
| Balkón | ano (9 m²) |
| Sklep | ano |























